キシモト住宅トップページ 売買物件情報 高知市西部エリア
高知市の不動産の売却、購入はキシモト住宅にお任せ下さい。電話088-805-0880
高知市不動産売買情報 高知市朝倉己 中古一戸建住宅 ()キシモト住宅 
中古一戸建住宅 
物件№0001912 高知市朝倉己 2300万円(不課)
  土地面積  149.6㎡(45.25坪)
建築構造 木造2階建
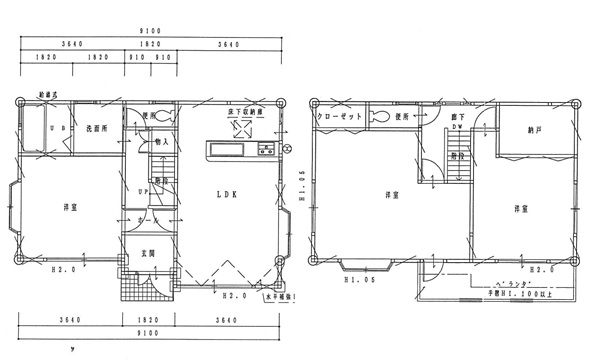
間取り 13洋・8.5洋・3納戸・トイレ
  14LDK・8洋・浴室・洗面・トイレ
延床面積  103.5㎡(31.3坪)
現況 居住中
築年数 平成12年5月築
交通 槙山バス停 徒歩7分 
小・中学校校区 朝倉第2小学校
朝倉中学校
南向き角地 日当り良
駐車場広く 4台可
前面道路広く お車の運転に自信が無くても楽々です
建物きれい

お問い合わせお待ちしております。
 
 
 
 
 
 
 
  支払い例 2300万円借入 10年固定型 金利1.08%
返済期間50年の場合 月々49,611円  ボーナス払い無し 
有限会社 キシモト住宅  
物件のお問合わせ・ご案内のご予約はTEL088(805)0880(有)キシモト住宅へ
ローンシュミレーションはこちらから
四国銀行  高知銀行 四国労金 JAバンク高知
キシモト住宅トップ画面へ          掲載物件のお問合せ